Verkauft!!! Weiterstadt Zentrum, uriger Laden in einer ehemaligen Scheune
64331 Weiterstadt, Sonstige zum Kauf
Kontaktdaten
-
NameBernd Haffki
-
E-Mail Direkt
-
Tel. Zentrale
Objektdaten
-
Objekt IDA 3008
-
ObjekttypSonstige
-
Adresse64331 Weiterstadt
-
Gesamtfläche ca.95 m²
-
KäuferprovisionBei erfolgreicher Vermittlung beträgt unsere Provision 2,975% inkl. MwSt. vom Kaufpreis, zahlbar vom Käufer
-
Kaufpreis179.000 EUR
Objektbeschreibung
Beschreibung
Das urige Ladengeschäft wurde ca. 1979 ausgebaut, vorher waren die Räume als Scheune genutzt worden.
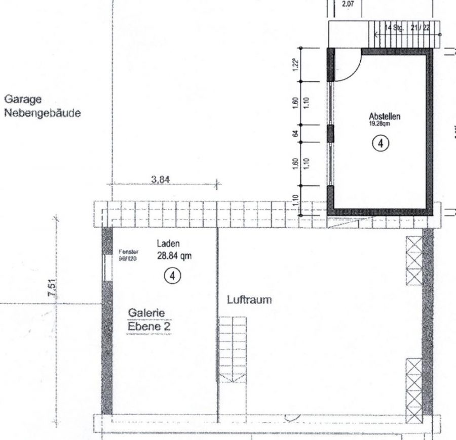
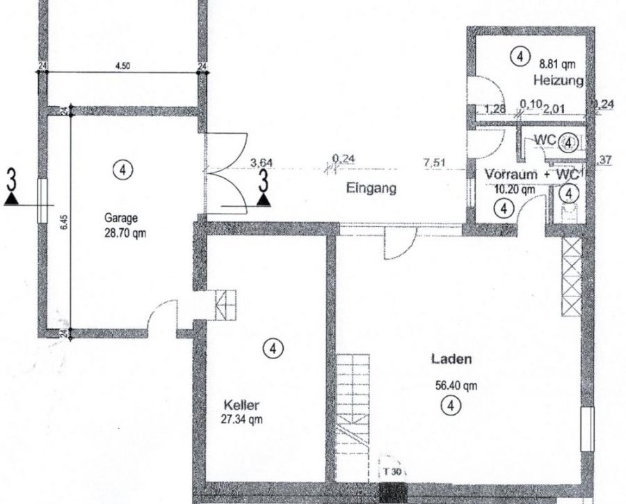
Aufteilung der Geschäftsräume (ca. 95 m²)
Erdgeschoss: Ladenraum, Vorraum, WC
Dachgeschoss: Galerie mit Blick in den Ladenraum
Zusätzliche stehen folgende Räume zur Verfügung (insgesamt ca. 85 m² Nfl.):
großer Hochkeller, Garage, Heizraum; großer Abstellraum
Die Immobilie ist Teil einer Wohn- und Geschäftsanlage mit insgesamt fünf Wohnungs- und Teileigentumseinheiten nach Wohnungseigentumsgesetz.
Es ist vorstellbar, dass die Immobilie auch umgenutzt oder verändert wird.
Die Immobilie befindet sich in gemischter Wohn- und Gewerbelage.
Die Immobilie ist aktuell vermietet.
Es liegt ein Energiebedarfsausweis vor. Der Endenergieverbrauch beträgt 230 kwh/(m²*a). Wesentlicher Energieträger ist Gas. Das Baujahr des Objektes ist 1900. Die Energieeffizienzklasse ist G.
Ausstattung
Gas-Zentralheizung; isolierverglaste Fenster; im Ladenraum hohes Fenster- und Eingangselement; Toilette gefliest
Sonstige Informationen
Die angegebenen Daten stammen vom Eigentümer/Eigentümervertreter/Verwalter. Sie sind gewissenhaft erhoben worden. Dennoch kann für die Richtigkeit und Vollständigkeit keine Haftung übernommen werden. Zahlenangaben können gegebenenfalls gerundet sein oder auf Schätzungen beruhen. Irrtümer und Änderungen vorbehalten.
Lage
Interessante Geschäfts- und Wohnlage im Geschäftskern der Weiterstädter Innenstadt; gesuchte Lage; Einkaufsmöglichkeiten, öffentliche Verkehrsmittel und Stadtverwaltung in unmittelbarer Nähe; zentraler großer öffentlicher Parkplatz ca. 50 m entfernt
Rufen Sie uns unter Tel. 06150-1818740 an. Gerne beantworten wir Ihnen nähere Fragen.
Die dargestellte Position der Immobilie ist nur eine ungefähre Angabe.



